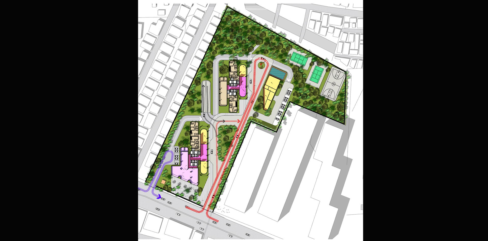
These two residential towers have recently been completed in Banguluru. The layout represent a new thinking in residential planning. In stead of the normal ‘ cut & paste ‘ culture of designs repeated everywhere, these layouts represented ‘ slim fingers ‘ arranged in a very efficient floor arrangement with a very tight core and providing maximum privacy from other apartments as well as external viewing aspects. A very difficult site but well planned offered total privacy from the surrounding noisy roads and lush landscaped gardens with a private amenities club for the residents, an idea very successful in Singapore and Kuala Lumpur.

Status:

Due to start construction

Dates:

2018-2022

Client:

Birla Estate

Total Built up Area:

600,000 sqft